Коттедж под ключ дизайн проект интерьера
Тел: +7 921 778 94 92

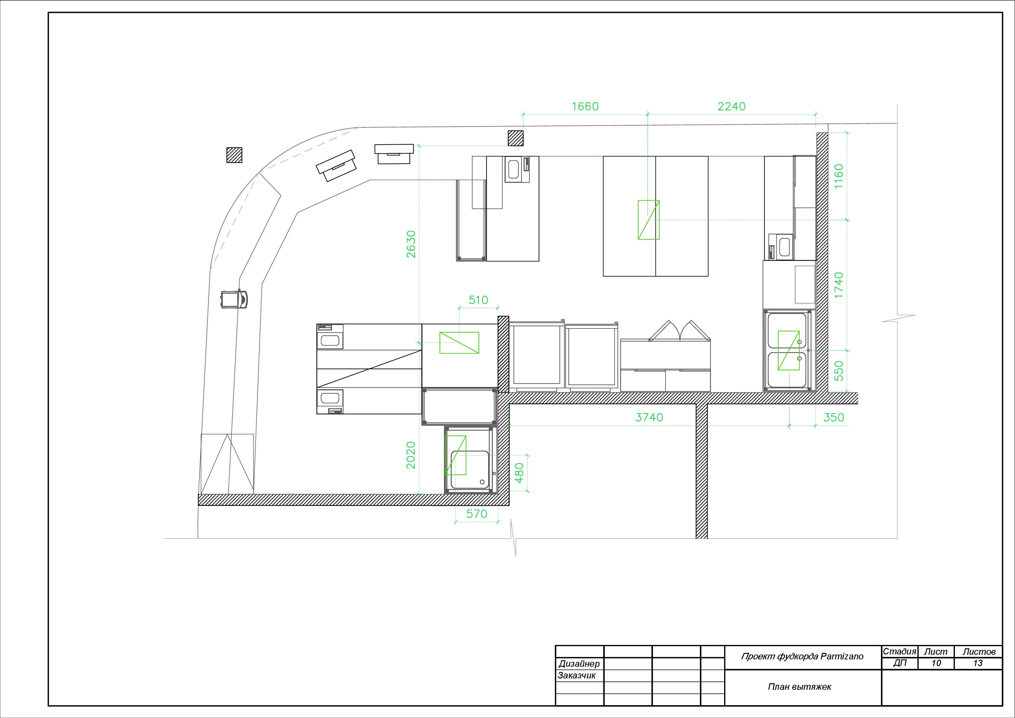
Дизайн проект барной стойки в кафе фастфуд бистро.


дизайн проект барной стойки в кафе фастфуд бистро дизайн проект барной стойки в кафе фастфуд бистро дизайн проект барной стойки в кафе фастфуд бистро дизайн проект барной стойки в кафе фастфуд бистро дизайн проект барной стойки в кафе фастфуд бистро дизайн проект барной стойки в кафе фастфуд бистро

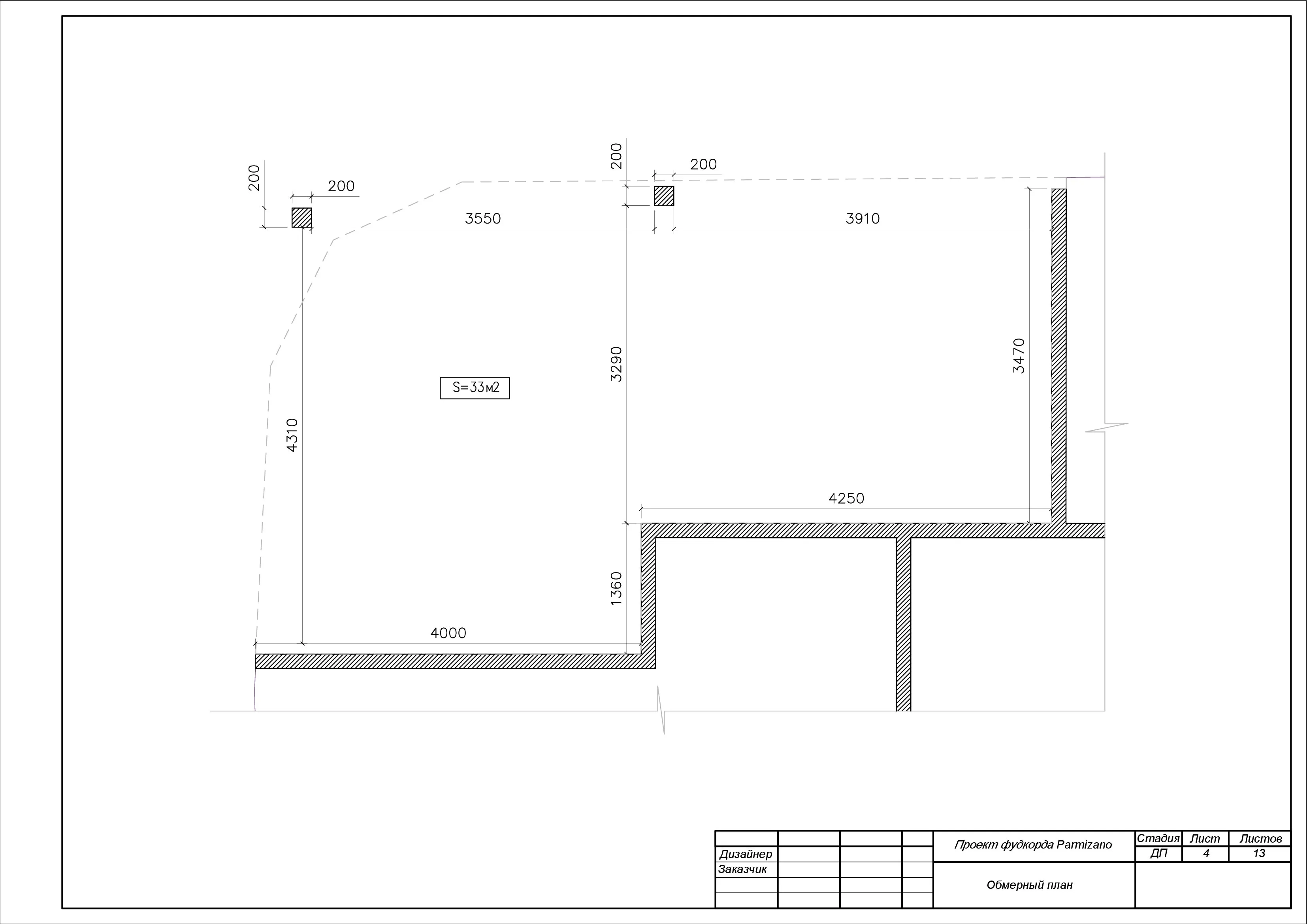
Схема, планировка, размеры и чертежи с расположением мебели, сантехники, освещения и раскладкой по осям с видами отделочных материалов размещены для ознакомления и возможности скачивания как образец.

1. Общие данные и спецификация отделочных материалов обозначены в проекте разным цветом. Проект детальный электромонтажа освещения и розеток, Вы можете бесплатно скачать на сайте фирмы © «Электрика СПб». В этой компании по оказанию услуг элетромонтажа, Вы можете заказать и разводку электрики (в квартире, в частном загородном коттедже, на даче).

2. План расстановки мебели, монтажные точки освещения, места установки сантехнического оборудования. Планы и виды отделки с обозначением разврток по стенам присутствуют в этом техническом задании.

РЕКОМЕНДАЦИИ: Обязательно крышку - столешницу для барной стойки и места выдачи готовой продукции, нужно изготовить из влагостойкого МДФ шпонированное палубой дуба с покрытием колерованным маслом с твердым воском на 3 слоя с промежуточной сушкой.

Фирма которая производит шпонированые столешницы (подоконники, каминные полки, ступени из шпонированной фанеры и другие столярные изделия), такая как © «Лестницы С-Пб», может по технологии заменить МДФ шлифованный на влагостойкий, при необходимости или рекомендации техничесого надзора заказчика.

Делаем евроремонт в квартирах и частных домах. Все виды отделочных - плиточных - штукатурных - ремонтных - электромонтажных - сантехнических работ под ключ. Звоните +7 (921)-778-94-92.

Некоторые примеры и варианты разработанных нашим архитектором - дизайнером проектов для отделки интерьеров квартир, загородных коттеджей, офисных помещений, торговый и развлекательных центров, магазинов, ресторанов и других помещений жилого и производственного назначения.

Дачный дом 60м2

дизайн проект интерьера холла дачного дома 60 м2

смотреть проект
Холл дома с камином

дизайн проект гостиной комнаты с камином загородного дома 250 м2

смотреть проект
Интерьеры дома 180 м2

дизайн проект загородного дома в классическом стиле

смотреть проект
Дизайн интерьеров

дизайн проект дома полный

смотреть проект
Дизайн коттеджа

дизайн гостиной коттеджа с камином

смотреть проект
Дизайн дома 150м2

дизайн проект интерьеров загородного дома

смотреть проект
Дизайн дома 340м2

чертежи и дизайн-проект загородного дома

смотреть проект
Дизайн 1 эт. дома

чертежи и дизайн одноэтажного дома

смотреть проект
Схемы дизайна дома

чертежи и дизайн интерьера дома 210 м2

смотреть проект
Дизайн гостиной дома

чертежи и дизайн интерьера дома

смотреть проект
Дизайн комнат в 3D

дизайн проект дома из бруса в 3D

смотреть проект
Дизайн кв. студии

дизайн проект интерьера квартиры студии

смотреть проект

Скидка на строительство.

При онлайн заказе скидка от 10 % на строительство дома под ключ.

ПОЛУЧИТЬ СКИДКУ!